2026年04月04日
关注微信
微信关注二维码

扫描二维码
关注微信公众号

手机访问
手机访问二维码

扫二维码访问,或在手机浏览器中输入:
www.cdhao.com

返回
详情
当前位置:成都号 > 每日更新 >2026盐田区桐悦湾花园人才房配售户型图(附线上看房)

2026盐田区桐悦湾花园人才房配售户型图(附线上看房)

来源:成都号 2026.04.03 13:46:07 阅读:76次

  一、基本情况及配售价格

  项目地址

  深圳市盐田区沙头角街道梧桐路与园林路交汇处。

  开发建设单位

  深圳市盐田安居有限公司,建设监管单位为深圳市盐田区住房和建设局。

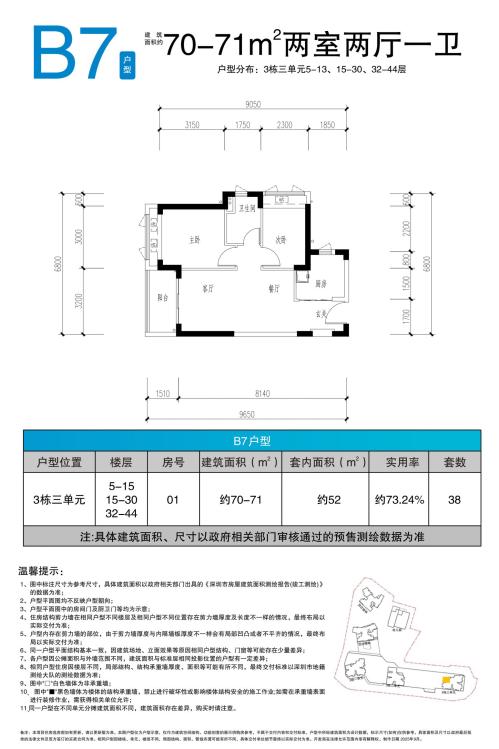
  项目配售户型:

  配售房源位于3栋一单元、3栋二单元、3栋三单元,其中:

  建筑面积约67-74平方米二房常规户型

  建筑面积约88-89平方米三房常规户型

  项目配售均价为29600元/平方米(按建筑面积计算,含装修单价751.79 元/平方米)

  本项目住宅塔楼为装配式建筑,室内为精装修交付,预计交付时间为2026年8月30日。

  二、配售项目户型图

  二房户型

2026盐田区桐悦湾花园人才房配售户型图(附线上看房)2026盐田区桐悦湾花园人才房配售户型图(附线上看房)

2026盐田区桐悦湾花园人才房配售户型图(附线上看房)2026盐田区桐悦湾花园人才房配售户型图(附线上看房)

2026盐田区桐悦湾花园人才房配售户型图(附线上看房)2026盐田区桐悦湾花园人才房配售户型图(附线上看房)

2026盐田区桐悦湾花园人才房配售户型图(附线上看房)2026盐田区桐悦湾花园人才房配售户型图(附线上看房)

  三房户型

2026盐田区桐悦湾花园人才房配售户型图(附线上看房)2026盐田区桐悦湾花园人才房配售户型图(附线上看房)

2026盐田区桐悦湾花园人才房配售户型图(附线上看房)

  三、线上看房入口:【点击此处进入

  
eddha铁厂家发货
推荐阅读:
微信搜索: 微信搜索【鸿海便民服务】公众号,关注后对话框回复关键词【交通】, 即可获取相关办理信息,如有最新的政策信息我们也会第一时间在此更新。还有更多成都本地办事指南、每日成都热点资讯等你解锁!

责任声明:凡注明“来源:成都号”的文章均由成都号整理,未经许可不得以任何形式转载!如本网内容涉及版权、隐私等权利问题,请相关权利人及时在线反馈给成都号,本网承诺会及时处理。

反馈
内容过时 未解决问题 文章侵权 排版错乱 内容有误 其他错误
18