一、基本情况及配售价格
项目地址
深圳市盐田区沙头角街道梧桐路与园林路交汇处。
开发建设单位
深圳市盐田安居有限公司,建设监管单位为深圳市盐田区住房和建设局。
项目配售户型:
配售房源位于3栋一单元、3栋二单元、3栋三单元,其中:
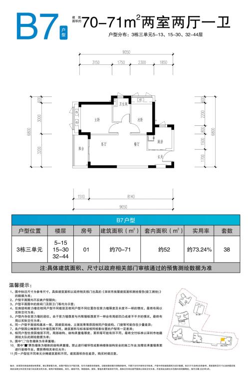
建筑面积约67-74平方米二房常规户型
建筑面积约88-89平方米三房常规户型
项目配售均价为29600元/平方米(按建筑面积计算,含装修单价751.79 元/平方米)
本项目住宅塔楼为装配式建筑,室内为精装修交付,预计交付时间为2026年8月30日。
二、配售项目户型图
二房户型








三房户型



三、线上看房入口:【点击此处进入】
责任声明:凡注明“来源:成都号”的文章均由成都号整理,未经许可不得以任何形式转载!如本网内容涉及版权、隐私等权利问题,请相关权利人及时在线反馈给成都号,本网承诺会及时处理。
微信扫一扫
分享到朋友圈
了解更多成都本地办事、民生热点,欢迎关注微信公众号
成都号
鸿海便民服务